Real estate

二道区伊通河与东环城路交会

联系电话:0431-81947777/8888

现场优惠
98折
楼盘参数
开盘时间:2021年8月11日
物业类型:普通住宅
建筑类型:高层
总户数:共计1732户
容积率:2.54
车位数:地面停车位391个,地下停车位1488个,总计1879个
绿化率:35.17%
装修情况:装修
开发商:吉林省力旺房地产开发有限公司
物业公司:力旺物业管理有限公司
物业费:2.8元/㎡/月

项目介绍

力旺·康城坐落于长春市二道区,不可多得的百万方资源型人文大城。项目坐拥立体交通路网,链接醇熟商业,毗邻约32万平力旺·湿地公园、北湖国家湿地公园、河口公园,更有伊通河与东新开河环伺左右;内享精英圈层文化与深厚人文情怀,是无法复刻的北城生态人居项目。
秉承力旺品牌理念,力旺·康城5期以优居文化、人文文化、健康文化、关怀文化、邻里文化为核心,打造建面约88~143平米奢居美宅,构建五重文化住区。
以当代人文为核心,筑就城市精英梦想,该项目将成为汇聚高阶人士的品质大城。

在售户型

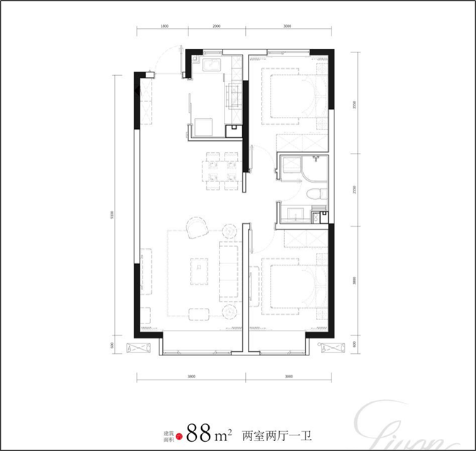
1、两室两厅一卫 建面约88㎡精致舒居

客餐厨一线式格局,串联欢聚时光
L型厨房,高效生活随心享
南北双卧室,三口之家的专属幸福
动静分区,灵活布局,满足生活所需
浪漫飘窗,美景随时可见

2、三室两厅一卫 建面约115㎡品质奢居
方正户型,南北通透,采光通风俱佳
奢阔餐客通厅,营造居家生活场
南向双卧室,阳光与生活形影不离
主卧次卧巧妙隔断,守护彼此私享生活
干湿分离卫生间,乐享健康生活

3、三室两厅两卫 建面约128㎡理想逸境
独立入户玄关,赋予归家仪式感
客厅主卧双飘窗,迎清风阳光入室
主卧套房,独享衣帽间,乐享休憩时光
干湿分离,双卫设计,生活从容不迫
多功能次卧,可作书房,生活拥有多种可能

4、四室两厅两卫 建面约143㎡奢阔宽境
约11.4米面宽,奢阔尺度,享从容人生
双厅设计,演绎舒居格局
客餐一体化设计,创造更多团聚时光
主卧套房设计,彰显主人奢贵品味
南北通透,向阳而居,尽揽四时光景

楼盘卖点

力旺·康城5期地处二道醇熟生活区,拥享丰富配套资源,国贸商都、新天地购物公园、晨宇科技城、赛特奥莱中东砂之船、北湖吾悦广场等大型购物中心,为业主提供一应俱全的生活服务。同时依托于百万平体量,项目内部配套发展完善,一站式满足业主日常所需。
项目紧邻两大交通主动脉,分别为南北走向的远达大街及东西走向的龙湖大路,畅享多元化交通网络。项目附近有272、223、233、3路、3A、3B、21路等公共交通线路,通达全城,此外项目周边地铁5号线,目前正在规划建设中。
项目地西侧是长春母亲河伊通河,在未来将成为集文化、休闲、旅游于一体的城市名片。项目毗邻力旺·湿地公园、长春北湖国家级湿地公园、河口公园,将大城情怀与自然相融合,织构起健康生态网,成就长春宜居范本。
项目自身在不断升级城市人居的同时,坚持在人文版块开疆拓土,为城市精英打造完美的成长之地。
力旺·康城5期医疗服务发达,享受北湖配套,项目到中日联医院本部仅需约15分钟的车程,同时距离现代化综合性三级甲等医院北湖中日联分院仅约10分钟车程,全方位为健康保驾护航。
项目于2021年入市,占地面积约8.1009万平米,总建筑面积约23.22万平米,规划88平米、115平米、128平米、143平米四个面积段的人文奢居产品。